Мы используем куки-файлы. Соглашение об использовании
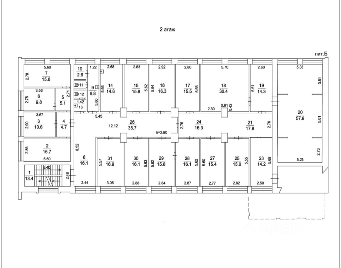
Помещение свободного назначения, 483 м²

Продается помещение свободного назначения, 483 м²

Площадь483 м²
Этаж2 из 3
Отчёт о привлекательности объектаУзнайте, насколько помещение и район подходят для вашего бизнеса
Что входит в отчёт
  • Охват населения
  • Пешеходный трафик
  • Автомобильный трафик
  • Средний бюджет семьи по району
  • Арендные ставки рядом
  • Точки притяжения
  • Конкуренты в радиусе 1 км
  • Рекомендации по выбору места для бизнеса
Открытые торги имущества: нежилое помещение (полностью 2 этаж) в 3х этажном административном здании, площадь 483 кв.м, проходят на площадке электронных торгов Центр Реализации Информация об аукционе на повышение 0010724 Наименование: Открытые торги по продаже недвижимого имущества, принадлежащего на праве собственности ООО Доходная Недвижимость (ОГРН 1185053019590, ИНН 5053056856) Дата проведения: 18.06.2026 12:00 Форма представления предложений о цене: Открытая Дата начала представления заявок на участие: 12.05.2026 00:00 Дата окончания представления заявок на участие: 11.06.2026 23:59 Порядок и критерии определения победителя торгов: Победителем аукциона признается участник торгов, предложивший за предмет торгов наиболее высокую цену. Порядок представления заявок на участие в торгах: Заявки на участие в торгах подаются в электронной форме посредством системы электронного документооборота на сайте в сети Звоните и подавайте заявки на участие!
lock

Войдите или зарегистрируйтесь
для просмотра информации

Просматривайте условия сделки и всю информацию об объекте
Сохраняйте фильтры в поиске и не вводите заново
Доступ к избранному с любого устройства
Неограниченное добавление в избранное
Позвоните автору
Вам ответят на все вопросы
Остались вопросы по объявлению?
Позвоните владельцу объявления и уточните необходимую информацию.
  • Инфраструктура
  • Похожие рядом
  • Тип зданияАдминистративное здание
  • Площадь участка0,07 га
  • Общая площадь1 000 м²
  • Статус участкаВ аренде
Приточная вентиляция
Центральное отопление
Сигнализация
Помощь надёжных риелторов
Риелтор партнёр Циан поможет купить или продать любую недвижимость
  • Документы проверены
  • 6 лет 1 месяц на Циане
  • 2 объявления
  • 11 000 000 ₽
    145 814 $
    124 625
    Цена за метр
    22 775 ₽
    Налог
    НДС включен: 1 983 606 ₽
    РиелторЕлена Зотова
    Документы проверены