Мы используем куки-файлы. Соглашение об использовании
С мебелью
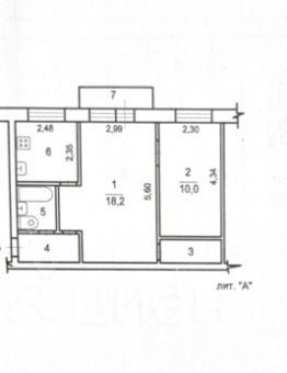
Общая площадь42 м²
Жилая площадь30 м²
Площадь кухни6 м²
Этаж3 из 4
Год постройки1961
Объявление снято с публикации, поищите ещё что-нибудь

О квартире

Тип жилья

Вторичка

Общая площадь

42 м²

Жилая площадь

30 м²

Площадь кухни

6 м²

Высота потолков

2,5 м

Санузел

1 совмещенный

Балкон/лоджия

1 балкон

Вид из окон

Во двор

Ремонт

Косметический

Продаётся с мебелью

Да

О доме

Год постройки

1961

Тип дома

Кирпичный

Тип перекрытий

Железобетонные

Подъезды

4

Парковка

Наземная

Отопление

Центральное

Аварийность

Нет

Газоснабжение

Центральное

Юридические особенности

Тип сделки

Альтернатива

4 700 000 ₽
Эксперт от ЦианаПомощь с поиском и сделкой
Цена за метр
111 905 ₽/м²
Ипотека
возможна
Агентство недвижимости
ID 292984