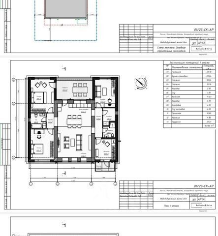
Продается просторный 25 соток с домом 120 м2+ цокольный этаж 80 м2. Участок крайний на улице, поэтому соседи по сути примыкают только с одной стороны На участке вырыт небольшой пруд , который можно обустроить под свои нужды. Участок сухой , весной вода моментально уходит, подтоплений нет . По границе участка центральное газоснабжение. Дом 2 двухэтажный из хорошего бревна зимнего спила , диаметр нижних бревен 45-50 см. Не сравнимо с оцилиндрованным бревном. Размер дома по периметру 6 x10 м. Плюс цокольный этаж 80 м2 из бетонных блоков. Дом необходимо достраивать, на данный момент сделано: -Гидроизоляция всего цокольного этажа, с дренажем. -Кровля из металлочерепицы с утеплением. -Двухкамерные пластиковые окна -Теплый шов , обработка внешней части дома составом Adler -Cкважина , с насосом Grundfos -Септик Евролос -Электричество проведено на участок 380В, 15кВт План предполагаемого дома есть, могу при необходимости передать . Также на участке имеется 2 бытовки : Одна для проживания строителей Во второй можно временно проживать на время ремонта . К участку широкий подъезд, зимой улицы чистятся спецтехникой. В непосредственной близости : школа, детский сад, поликлиника, магазины, мфц и в то же время озера с зонами отдыха, лес и тишина. До узловой ж/д станции Фрязево 7 мин транспортом, г. Электросталь 20 мин на машине Один взрослый собственник, более 5 лет. Полная сумма в договоре.















































































